深圳市南山白石洲旧改
深圳市南山白石洲旧改

石洲,位于深圳市南山区东部的沙河街道,作为深圳最大的城中村之一,拥有几乎深圳市区最集中最大规模的农民房,很多从外地来深圳的人都有过一段或长或短的在白石洲生活的记忆,它不仅因为出租屋众多、住房相对便宜而闻名,还因为它的地段特殊,它位于深南大道两侧,主干道深南大道交通四通八达,还有华侨城高档社区与之比邻而居,西边有名商高尔夫球会、沙河高尔夫球会,南邻深圳湾超级总部基地。


预备拆迁的 1600 多栋出租屋为许多“闯深圳”的人们提供便宜方便的居所。有人还粗略计算过,从 90 年代到现在,白石洲至少容纳过 300 万人次,但同时,白石洲的脏乱差也是有目共睹,过道狭窄,电线在这里仿若藤蔓,肆意生长,充满着消防隐患,白石洲的火灾发生次数逐年攀升,环境、治安、消防、卫生等都存在较大问题,给城市管理及生活居住都带来不便。随着城市发展、转型及功能的逐步提升,白石洲的旧改已是刻不容缓,通过改造改善片区居住环境,提高居民生活质量,是大家都乐意见到的事。

旧改根据《2014年深圳市城市更新单元计划第二批计划》显示:白石洲旧改项目正式名称为“沙河五村城市更新单元”,其申报主体为“深圳市白石洲投资发展股份有限公司”,拟拆除重建用地面积达到惊人的45.9万平方米。拟更新方向为居住、商业等功能。项目计容总建面约350万㎡,除各种配套和回迁外,绿景可开发面积约237万㎡,其中估计自持面积80万㎡,估计销售面积157万㎡。



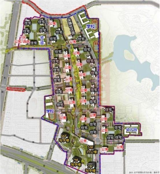
根据发布的白石洲规划草稿显示,沙河五村城市更新项目(即白石洲旧改)更新单元用地面积约48.01万㎡,拆除用地面积约45.95万㎡,开发建面约30.38万㎡,改造后计容积率总建面高达347.96万㎡,其中住宅125万㎡,商业、办公及旅馆业104.5万㎡,商务公寓112万㎡,公共配套设施6.5万㎡,容积率11.5。项目共由31栋49-65层住宅,21栋公寓,3栋66-79层超高层写字楼,1栋59层办公楼组成。

项目周边环绕着深圳湾超级总部基地、后海总部基地、蛇口前海自贸区、福田CBD等核心区域以及深圳主要总部基地,是深圳城市和产业发展主轴交汇处。白石洲城市更新项目东临深圳传统豪华区华侨城片区,西接高新技术云集的南山高新技术园,紧邻深圳城市主轴线深南大道,横跨深南大道,毗邻科技园、世界之窗、深圳湾公园等深圳地标,处于深圳核心发展区域福田区与南山区的交接节点。

同时项目周边环绕着深圳湾超级总部基地、后海总部基地、蛇口前海自贸区、福田CBD等核心区域以及深圳主要总部基地,是深圳城市和产业发展主轴交汇处。不仅项目本身的体量大,物业价值也非常高。

1、2005年,深圳市和南山区政府开展白石洲旧村改造研究,白石洲旧改正式拉开序幕;
2、2012年8月由南山区委区政府领导带队成立沙河五村城市更新领导小组;
3、2013年10月,沙河五村北区范围内完成业主更新意愿书签署工作;
4、2014年,白石洲旧改正式列入深圳城市更新名单;
5、2016年6月,股份公司50万平米集体用地完成确权;
6、2016年12月,沙河五村更新项目专项计划通过深圳规土委更新局业务会审查;
7、2017年6月,沙河街道沙河五村城市更新单元规划(草案)正式公示;
8、2017年年底,绿景白石洲城市更新办公室成立;
9、2018年12月,白石洲改造专项规划已于获得市规土委正式批复,按照政策规定,专项规划批复两年内必须要完成签约,清租收整、申报实施主体、房屋拆除等工作;
10、2019年3月 完成集体物业拆迁补偿协议签订;
11、2019 年 5 月,最新个人物业确权已经接近 90%
12、 2019 年 6 月,启动拆迁补偿协议签订

住宅:125万㎡(含人才住房和保障性住房 5 万㎡);
公寓:112 万㎡ ;商业+办公+酒店:104.5 万㎡ ;
公共配套:6.45 万㎡(学校 3 所、幼儿园 57 班 )
交通规划:新增地铁 20 号线、29 号线,白石洲为枢纽站。
地下商业建筑面积100450㎡;地下市政交通设施25500㎡
开发周期约8-10年,共分三期开发


补偿标准
按月补偿租金:首层每月100 元/㎡,二层及以上每月60元/㎡的搬迁费用(一次性发放 6 个月),回迁后补偿装修费用:住宅 2000元/㎡。

赔偿住宅户型(可按户型选择购买面积)
小区住宅户型,分别为55㎡(此户型仅限有一套住宅指标的非本地原村民选择)、80㎡、100㎡、120㎡、160㎡,180㎡、260㎡、260㎡(复式)户型图如下:












项目优势以及签约流程



购买人不用社保,不占用名额,可参考大冲片区旧改收益,目前签约率已达90%以上,深圳市重点工程,有旧改之王之称的绿景超2000亿投资白石洲项目注资上市公司,该项目是深圳最大城中村旧改项目,其区位优势非常明显,毗邻深南大道以及科技园,可谓寸土寸金。
在18年6月时白石洲的小产权房交易市价已达4.2万元/平方米,到2020年5月份已经达到7.2万元/平,到2020年7月份已经达到8.3万元/平,到2020年12月份会达到X万元/平到2021年12月份会达到多少万呢?按合同开发商承诺6年内交房 (仅供参考) ,2026年7月份又会是多少呢?

绿景中国地产行政总裁兼执行董事唐寿春等管理层曾表示,白石洲项目计划将进行四期滚动开发,可售面积预计为180万平方米,预计在2023-2030年进入销售、现金回笼阶段。其中,白石洲项目一期预计在2021年就能开工!
目前区域的周边基本没有新房,二手房价则多数集中在 10-19万/平之间。
科技园片区,大概13~19万,白石洲的西边的老房子,比较便宜,大概10万左右,白石洲的右边的豪宅区,大概15~18万,以白石洲的定位,旧改完成以后应该是超越大冲的片区,目前大冲均价18万/平米,就算大冲往后6年不涨价,6年后绿景第一期建成备案价至少也要十五万往上,现在购买的价位就相当于购买了原始股!
-
- 中国菜10道好吃下饭的家常菜,收藏好,换着样的做
-
2026-01-27 09:58:24
-
- 专访 | 四年涨粉3000万,20岁成为董事长,陈逗逗的快手人生
-
2026-01-27 09:56:10
-
- 林孝谦:生命就是这样,很多好事儿都是伴着意外而来
-
2026-01-27 09:53:56
-
- 东京—银座购物指南之百货篇
-
2026-01-27 09:51:41
-
- 青岛财经周报 | 600个!青岛公布2025年市级重点项目名单
-
2026-01-27 09:49:27
-
- 欲与长征试比高 蚍蜉撼树殊可笑 苍龙级潜艇图鉴 100图
-
2026-01-26 19:44:16
-
- 宜兴旅游攻略 宜兴旅游景点大全
-
2026-01-26 07:02:23
-
- 小白鞋的6种搭配,让你清新整个夏季
-
2026-01-26 07:00:09
-
- 四月英语怎么说?四月的相关英语
-
2026-01-26 06:57:55
-
- 终极斗罗:终极斗罗主角终于出现了,古月娜亲自认证,不是叶灵瞳
-
2026-01-26 06:55:41
-
- 泰星Mark、Kimberly庆祝交往八周年:最重要的就是眼前人
-
2026-01-26 06:53:26
-
- 美食耽美文(美食文小说合集)
-
2026-01-26 06:51:12
-
- 被官媒点名批评,“五音不全”气走评委!曾轶可为何争议不断
-
2026-01-24 23:38:02
-
- 毛启国:武警八大警种部队臂章、胸标图鉴
-
2026-01-24 07:16:57
-
- 林徽因的三段感情史
-
2026-01-24 07:14:43
-
- 印度人不吃牛肉,不吃猪肉,看到他们桌上的肉,贫穷限制了想象
-
2026-01-24 07:12:28
-
- 香港回归,让英军“下岗”的交接指挥官谭善爱,转业后去干了啥?
-
2026-01-24 07:10:14
-
- 文兴宇一生嗜烟如命,7字遗言让人泪目,遗孀至今无法释怀
-
2026-01-24 07:08:00
-
- 冯延巳|五代十国时期著名词人、宰相,仕于南唐烈祖、中主二朝
-
2026-01-24 07:05:46
-
- 同古战役打得有多漂亮?:中国远征军以少胜多,歼灭日军五千余人
-
2026-01-24 07:03:31



广东最美警花王菲,与86名高官发生过关系,疯狂敛财上亿元!
男子和三个美女自愿开房并发生性关系,是否构成聚众淫乱罪?