二十种玄关设计图(100款)
二十种玄关设计图(100款)
锦绣钱塘660㎡别墅

项目名称 Project Name | 锦绣钱塘
项目地址 Project Address | 杭州
项目类型 Project Properties | 别墅
项目面积 Project Area | 660㎡
设计机构 | KIM Interiorize Dseign
前言
本案的业主是一个90后女生,也是一家拥有四百人网游公司的老板,很符合当下独立干练女生的特点,屋主拥有一颗少女心,享受着被衣服、包包、化妆品包围的幸福感,对家也是充满幻想,要求:“不想要当下特别流行的黑白风格和诧寂风格,觉得没有家的感觉和自己想要的,平时工作已经相当的忙碌,想回到家里以后更多感受到的是家的温馨。”所以在与屋主进行简单沟通之后,我们有了清晰的构思和规划,加入了很多鲜明的色彩及元素,只愿给予对于家充满憧憬与热爱生活的业主一场专业用心的筑梦。每一种风格都是需要去尝试,每一种体验都是值得用心对待的。
设计一所住宅至关重要的是,想方设法巧妙构思设计出:住起来舒服的空间和合理机关配置同时,还要发挥想象力,从居者视线出发考虑。我们常说,生活不只是苟且,还有诗和远方。对于拥有四百名员工的屋主来说,生活还有party和远方。660平的室内空间,有一半以上的面积用在了公共生活区,一些有趣的设计亮点,满足公司聚会party时不同的体验,分分钟嗨起来也不是问题。
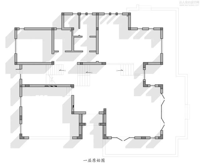
原始结构图 / Original Diagram



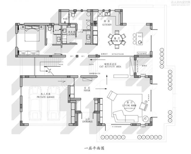
平面规划图 / Floor plan



▼玄关/Entryway

简洁干净的玄关让人眼前一亮,拱形门洞,为整个空间增添了几分灵动感和趣味性,一进门就感受到空间的线条之美。KIM设计师将艺术融于生活,提高了居住美学的调性,用简单直白的空间语言描绘高级雅致的居家美学。
▼客厅/Living room







▼餐厅/Restaurant


餐厅则打造成了黄、蓝两种色彩主题,在春色景象的照拂下,树叶的阴影洒入空间内,温暖而惬意。
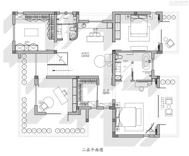
▼休闲厅/Lounge

休闲厅的设计比较简约,大面积的留白给予了相当的视觉舒适度,橡木色饰面加深了空间的印象。无论茶几还是造型座椅,都极具设计感,不乏时尚氛围。
▼书房/ Study

▼主卧/Master Bedroom


主卧以高级灰为主要色调,营造安逸而舒适的氛围。
▼卫生间/Toilet

▼次卧/Second Decubitus

次卧的设计则更加充满理性一些,白色背景饰面营造了干净纯粹的空间氛围。
▼衣帽间/Cloakroom

这里,应该就是大多数女孩都拥有的空间,透明的高端玻璃窗里的都是日常买下的战利品。
▼地下室大厅/Basement lobby


负一层大厅仪式感强烈,颇有私人休闲博物馆之意。在空间的色彩搭配上,艺术涂料与软装的色调搭配自然舒适,红色作为一个点缀的色调,恰到好处的将空间的气氛活跃起来,尽显品质的同时又不失活力的展现。
▼影音室/Av Room

▼包包展示区/Bag Display area

▼健身房/The gym

新湖菲林130㎡住宅

项目名称 Project Name | 新湖菲林
项目地址 Project Address | 杭州
项目类型 Project Properties | 毛坯房
项目面积 Project Area | 130㎡
设计机构 | KIM Interiorize Dseign
当空间的意义不再只停留在居住的概念,从情感、美学、功能的维度出发,重新审视空间与人的关系,我们回归本真,将空间个性彻底释放。所有对生活的美好期盼都在重建中得到了实现。
原始结构图 / Original Diagram

平面规划图 / Floor plan

▼客厅/Living room


客厅空间精致整洁、色调统一,无茶几的设计为业主的娱乐、健身提供便利。悬空电视柜隐藏了作为游戏少女业主的游戏机并且不留一根线,弧形背景立面细节感强烈,奶油色的艺术涂料温馨舒适与其结构之美,用现代手法重新组合,在视觉中,虚与实、显与隐、光与影互相作用。




以开放式格局打通客厅与阳台界限,延展了空间的维度,让氛围自在流动;无主灯的设计让客厅空间更加高级,舒适,而且又简约。大面积透明玻璃窗设计则最大限度地将光线纳入室内,让自然与生活之间有所联系,升华了空间所存在的意义。









当清晨的第一缕阳光从室外射入客厅,业主便开启了一天的日常。美好,从这一缕阳光开始。背景墙面以奶油白艺术涂料为主基调,又似乎是一面“影壁”,让光影在这面影壁上肆意涂抹。软装搭配力求点到为止,赋予整体更多想象和思考的空间。


空间里每一件配饰、每一件家具都以特定的符号在空间中相互成就交融协奏,隐形门的设计增强了空间视觉效果,每一处设计的呈现都蕴藏着出色的审美品位,让空间拥有特定的价值体验。
▼餐厅/Restaurant


餐厅既是家人团聚的场所,也是现代人的社交场所。温润的木质元素、柔和的弧形岩板、朴素的微水泥砖,以及清透的花卉装饰,让空间呈现出一种静谧雅致的场所精神。


餐厨一体的开放式L形大厨房,围绕岛台有了洄游动线让整个空间布置更开放、更具包容性。中岛台的设计加强了人与人之间的紧密联系,储物功能也很强大。轨道插座的细节使用灵活又方便,食之有味乃人生百态,空间的转换,需有触发人的感官变换的渐进过程。

以优雅流畅的动线,营造若有似无的边界,线条优美的藤编餐椅为空间带来了温暖的视觉与时光的沉淀感;柜门根据墙面艺术涂料做了特别定制,兼具实用性与美感,时尚的球形吊灯传递出主人对生活的激情。


设计师通过各种方式将自然引入空间,让光线在空间里演绎变幻不同形状和色彩。有人说:“光线是上帝的礼物,也是最好的造型师”。
▼厨房/kitchen

打破原有的封闭格局,将厨房变成一个开放空间。宽阔的中岛台拓展了空间的用途,形成新的互动场所。烹饪也因此成为了一种享受,新的烹饪方式随之出现。
▼书房/Study



原书房有55高52深的飘窗,经过改造成为超实用的L形开放式,左侧拱形壁龛,搭配精美摆件提升书房颜值。不取繁饰,空间布局和陈设都极尽简约,一桌、一椅、一方书架,只取绿植为丽景,诚如《书斋说》所言:书斋宜明朗、清净,不可太宽敞。以木香书香沐浴心灵,日中沉思,静中安悟,这便是书房的雅趣了。


横平竖直L形书桌悬浮的形式轻巧地展示线条之美,日常办公、看书、打游戏都能得到很好的满足。这样一间偏安一隅的书房对于业主来说,是一个可日日相伴,随心而专注的空间,也像一位沉默的家人一般。
▼阳台/Balcony

阳台一侧远离客厅一角,隐藏式晾衣杆让整体看起来更加精致简约。人和猫作为空间使用者,我们平衡他们作为不同个体,更融洽的去看待这个空间的功能和尺度。
▼主卧/Master bedroom


主卧巧用少女粉、清新白半高床头背景墙面搭配,甜蜜梦幻而不失高级质感;一边放了床头柜,一边放了梳妆台带给人们轻盈的质感。多彩的花卉装饰、干芦苇等元素的点缀更为空间增添清新活泼的气质。



卧室耐看的法式线条元素与优雅的色调,相得益彰,彰显法式温柔,是一个可以完全放松精神的地方,缓解精神上的疲态,主卧引入室外的自然光,结合大面积的空间打造敞亮,光线照射在空间中能带来更加温馨闲逸的感觉,营造,简洁雅致的氛围。
,
-
- 郭跃近况乒乓界 生活羡煞旁人假小子蜕变女神
-
2023-09-03 23:11:06
-
- snh48秒懂费玉清段子的成员(SNH48怎么总不走寻常路)
-
2023-09-03 23:11:06
-
- csgoc9战队队员介绍(CSGO人物志丹麦核心科技)
-
2023-09-03 20:26:11
-
- 余生皆与彼此有关广播剧在哪(广播剧的不同人生)
-
2023-09-03 20:23:56
-
- lol新英雄符文天赋加点顺序(LOL最强王者万场末日使者)
-
2023-09-03 20:21:41
-
- 女生必备的10件礼物(女孩子喜欢什么礼物)
-
2023-09-03 20:19:27
-
- 奥拉星2更新了什么(奥拉星218预告汇总吐槽)
-
2023-09-03 20:17:12
-
- 80岁老教授起诉知网(知网被判赔教授70w)
-
2023-09-03 23:11:09
-
- 世界上最好的玩具品牌排行榜(世界十大玩具品牌排名)
-
2023-09-03 23:11:10
-
- 埃及三个统一王朝特征(反抗阿拔斯哈里发)
-
2023-09-03 17:45:08
-
- 钻地弹科普(兵器小百科10钻地弹)
-
2023-09-03 17:42:53
-
- 四姑娘山夏天美(人生最美好的时刻)
-
2023-09-03 23:11:12
-
- splitter用法(Splitter助力解决大集合参数)
-
2023-09-03 17:38:24
-
- 伊能静黄维德(复盘伊能静11年前出轨黄维德)
-
2023-09-03 23:11:14
-
- 释迦摩尼佛顶骨舍利发现过程(释迦牟尼佛涅槃留下的舍利子)
-
2023-09-03 23:11:15
-
- 10大当红的小鲜肉(如今命最好的小鲜肉)
-
2023-09-03 23:11:16
-
- 最适合打csgo的八大鼠标(最酷的游戏定制鼠标)
-
2023-09-03 17:29:25
-
- twitter最火的黑人 Twitter姓马之后
-
2023-09-03 23:11:18
-
- 起坐弹鸣琴薄帷鉴明月清风吹我襟(疾风知劲草板荡识诚臣)
-
2023-09-03 14:59:34
-
- 杨尚昆被关押时病危(杨尚昆被关押时病危)
-
2023-09-03 14:57:19



广东最美警花王菲,与86名高官发生过关系,疯狂敛财上亿元!
男子和三个美女自愿开房并发生性关系,是否构成聚众淫乱罪?